14 Page Heath Villas Bromley, Kent, BR1 2QN
Unconditional Online Auction Sale
Auction Ended 8/12/2025 10:57:24 AM
A Five Room Mid Terrace HMO Fully Let Producing £54,540 Per Annum
Description
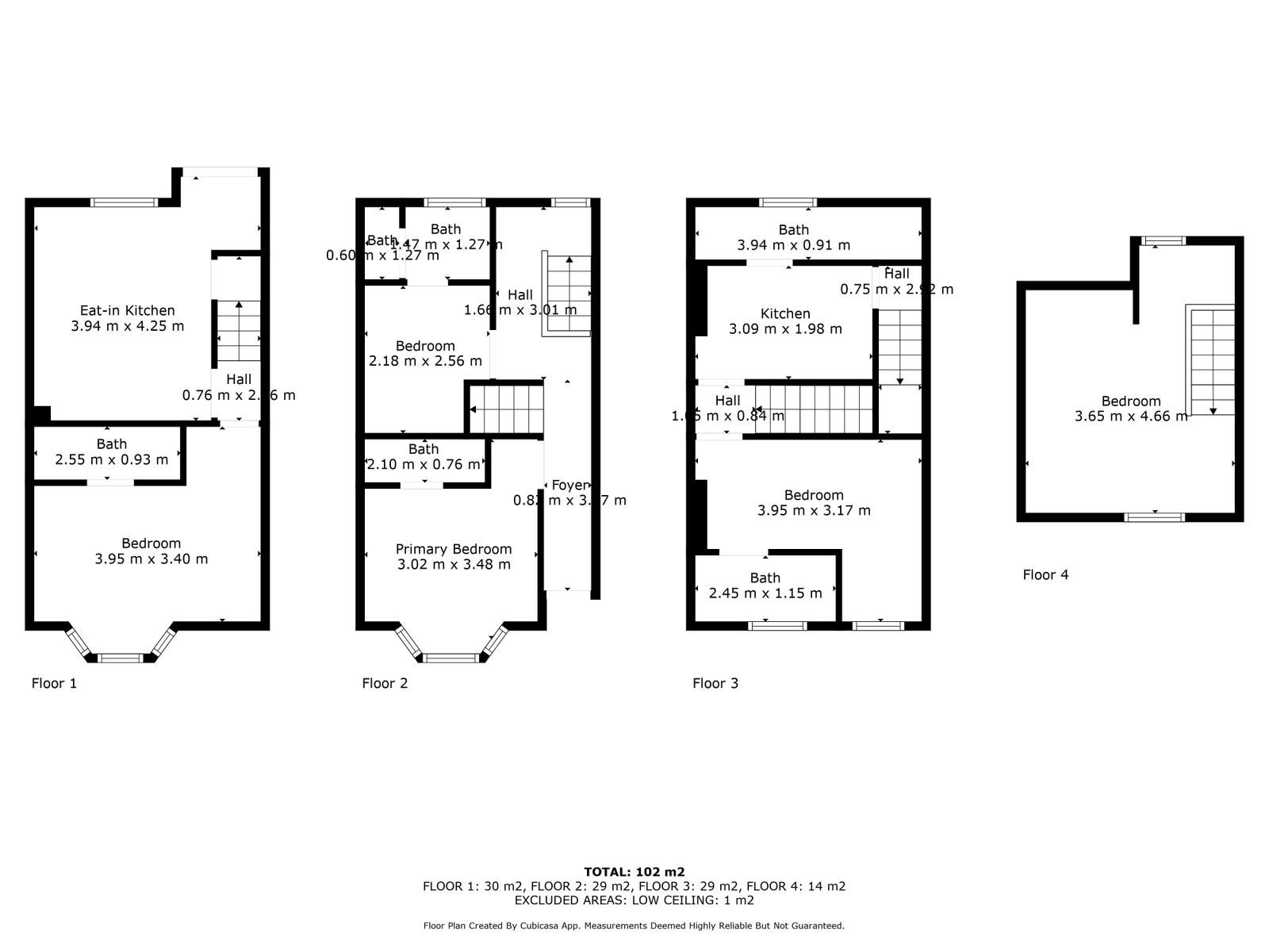
The property comprises a five room mid terrace HMO arranging over lower ground, ground and two upper floors.
Tenure
Freehold
Location
The property is situated on a residential road close to local shops and amenities. The open spaces of Havelock Recreation Ground are within easy reach. Transport links are provided by Bickley rail station.
Accommodation
Lower Ground Floor
Communal Kitchen and Dining Area
Letting Room (with En-Suite)
Ground Floor
Two Letting Rooms (Both with En-Suites)
First Floor
Letting Room (with En-Suite)
First and Second Floor
Studio Room (with En-Suite)
Kitchen
Exterior
The property benefits from a rear garden.
Tenancy
The property is subject to individual tenancies at a combined rent of £54,540 per annum.
EPC Rating
C
- Additional Fees and Disclaimer
- Administration charge: £1,800 including VAT unless otherwise stated in the addendum.
- Buyers Premium and Disbursements: Please see the legal pack and the addendum for any disbursements and buyers premium that may be payable by the purchaser on completion.
- Guides are provided as an indication of each seller’s minimum expectation. They are not necessarily figures which a property will sell for and may change at any time prior to the auction. Each property will be offered subject to a Reserve ( a figure below which the Auctioneer cannot sell the property during the auction) which we expect will be set within the Guide Range or no more than 10% above a single figure Guide.
- Particulars including images and video tours on the website and within the catalogue are believed to be correct but their accuracy is not guaranteed. The auctioneers will always endeavour to inform prospective purchasers of variations to the catalogue, when such changes are brought to their attention. The auctioneers nor their clients can be held responsible for any losses, damages, or abortive costs incurred in respect of lots that are withdrawn or sold prior to auction. Viewings are carried out by third party agents and we will endeavour to give appropriate notice should the published viewing time change. Auction House London will not be liable for any costs or losses incurred due to viewing cancellations or no shows. Information relating to Rating matters has been obtained by verbal enquiry only. Prospective purchasers are advised to make their own enquiries of the appropriate authorities. Prospective purchasers are deemed to verify for themselves whether tenanted properties are occupied and rents are being paid. All measurements, areas and distances are approximate only. Potential buyers are advised to check them. No representation or warranty is made in respect to the structure of any properties nor in relation to their state of repair. Prospective buyers should arrange for a survey of the particular lot by a professionally qualified person.
Loading the bidding panel...
For further information, please register for the legal pack. To speak to a member of our team about this lot, please call us on
020 7625 9007 or email us at info@auctionhouselondon.co.uk
By setting a proxy bid, the system will automatically bid on your behalf to maintain your position as the highest bidder, up to your proxy bid amount. If you are outbid, you will be notified via email so you can opt to increase your bid if you so choose.
If two of more users place identical bids, the bid that was placed first takes precedence, and this includes proxy bids.
Another bidder placed an automatic proxy bid greater or equal to the bid you have just placed. You will need to bid again to stand a chance of winning.